

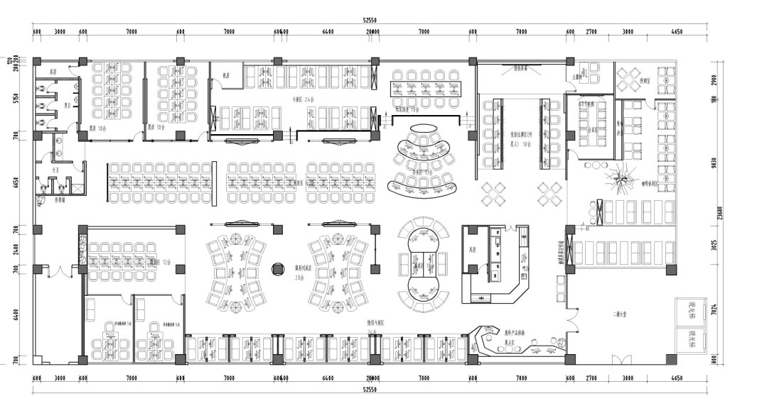
美式风格咖啡厅网吧室内空间设计平面图
美式风格咖啡厅网吧室内空间设计平面图

美式风格咖啡厅网吧室内空间设计效果图

美式风格咖啡厅网吧室内空间设计效果图

美式风格咖啡厅网吧室内空间设计实景图

美式风格咖啡厅网吧室内空间设计缩略图

美式风格咖啡厅网吧室内空间设计缩略图
准备在合肥做网咖的朋友可以参考一下。全部样图请联系我们获取?;队蠹依次颐枪就ё靶蘩改孔鐾勺靶奚杓频牟慰肌V蓖ǔ担?a href="http://www.idfaka.cn/wk/">合肥网咖装修